6 Hemlock DrivePelham, NH 03076




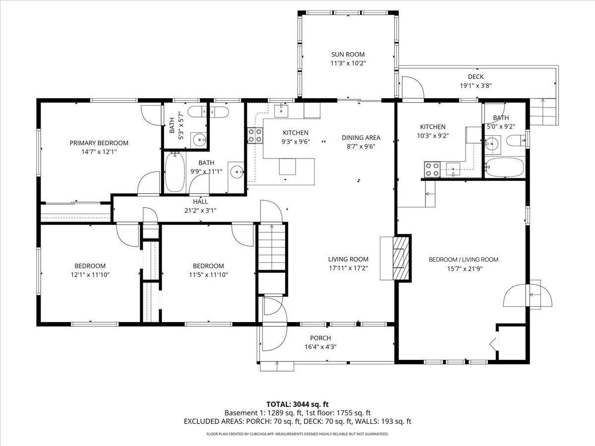
Welcome to this ranch-style home in Pelham, New Hampshire, offering true one-level living in a highly desirable commuter location. Just minutes to the Massachusetts border, this property is ideal for buyers seeking convenient access to Boston-area employment while enjoying the privacy and lifestyle of Southern New Hampshire. This 3-bedroom, 1.5-bath home features an open-concept layout with a comfortable living room flowing into the dining area and kitchen — a functional design perfect for everyday living and entertaining. With solid bones and a flexible floor plan, this home presents a fantastic opportunity for buyers looking to add their own updates and personal touches. A spacious 3-season sunroom adds valuable bonus living space and overlooks the flat, level lot — ideal for outdoor gatherings, gardening, or recreation. The yard offers plenty of room to create your own backyard oasis. The standout feature of this property is the legal Accessory Dwelling Unit (ADU) — a rare find in today’s market. This studio-style unit includes a kitchenette and ¾ bath, making it perfect for multi-generational living, guest space, or potential rental income. Whether you're looking to offset your mortgage or accommodate extended family, this ADU provides incredible flexibility and long-term value. This home does require some TLC and is priced accordingly, offering a compelling opportunity for investors, owner-occupants, or buyers looking to build equity in a sought-after Pelham neighborhood. If you’ve been searching for a Pelham NH ranch with a legal ADU and strong commuter access, this property offers location, potential, and value.
| 2 days ago | Listing updated with changes from the MLS® | |
| 3 days ago | Listing first seen on site |
Copyright 2026, PrimeMLS, Inc. All rights reserved. This information is deemed reliable, but not guaranteed. The data relating to real estate displayed on this display comes in part from the IDX Program of PrimeMLS. The information being provided is for consumers’ personal, noncommercial use and may not be used for any purpose other than to identify prospective properties consumers may be interested in purchasing.
Last checked: 2026-02-27 01:09 AM UTC
Did you know? You can invite friends and family to your search. They can join your search, rate and discuss listings with you.