0 Stonewall StreetNewport City, VT 05855




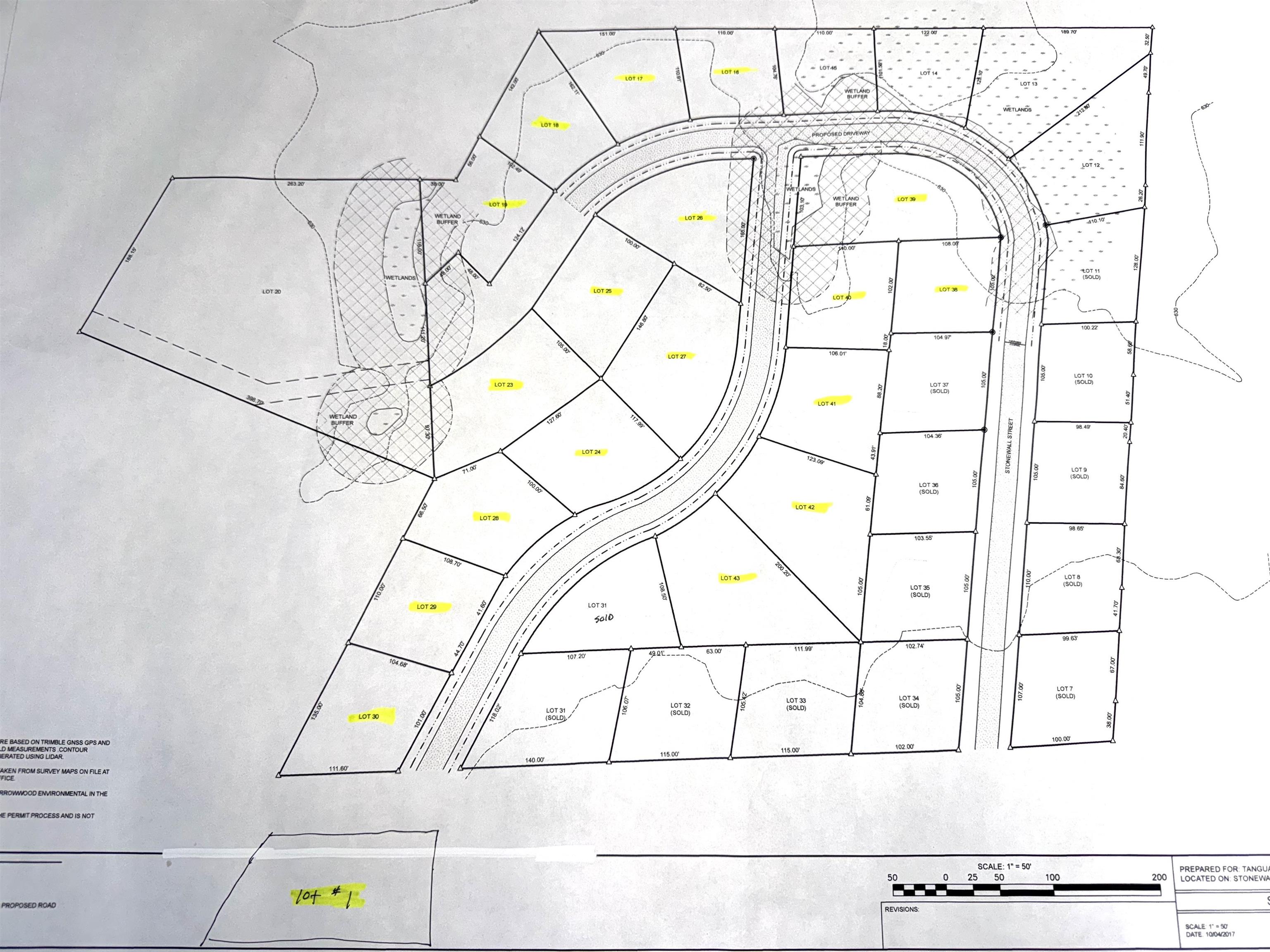
Now is your chance to secure a fully permitted development project located in the heart of Newport, Vermont. This unique offering includes 19 build-ready lots, complete with water, sewer, power, and fire hydrants already in place allowing you to move forward with construction immediately. State and local permits on file for the development, each lot has been surveyed with pins set, and would fall under the Vermont Home ACT S.100, giving you flexibility to build single-family homes, duplexes, triplexes, quadplexes, or a combination. Whether you’re planning a residential neighborhood or a mixed-use community, this project offers the foundation for success. Positioned in a prime location, these lots are just minutes from North Country Hospital, I-91, restaurants, shopping, bike path, and more. Residents will enjoy both convenience and the charm of a growing community. Adding a touch of character, each street in this development is named after U.S. presidents and generals. Don’t miss this one-of-a-kind opportunity to shape the future of Newport by bringing much-needed housing and investment to the area. With infrastructure and approvals already in place, the path is clear for your next development venture. *Home Act S.100-Expansion of multi-unit housing: The law essentially bans single-family-only zoning statewide. It requires municipalities to: Allow duplexes wherever single-family homes are permitted and permit up to four-plexes on lots served by municipal water and sewer. Listing agent related to seller.
| a month ago | Listing updated with changes from the MLS® | |
| 5 months ago | Listing first seen on site |
Copyright 2026, PrimeMLS, Inc. All rights reserved. This information is deemed reliable, but not guaranteed. The data relating to real estate displayed on this display comes in part from the IDX Program of PrimeMLS. The information being provided is for consumers’ personal, noncommercial use and may not be used for any purpose other than to identify prospective properties consumers may be interested in purchasing.
Last checked: 2026-04-24 12:35 PM UTC
Did you know? You can invite friends and family to your search. They can join your search, rate and discuss listings with you.