103 Seaverns Bridge RoadMerrimack, NH 03054




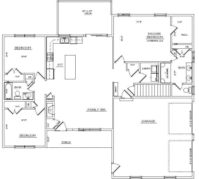
Under Construction: This 1,554 square-foot ranch style home, situated on a ±3.39 acre lot, offers three bedrooms, two bathrooms and a thoughtful layout designed for modern living. The primary suite features a walk-in closet and a private bathroom with stand up shower. The open floor plan seamlessly connects the kitchen, dining and living areas creating an ideal space for entertaining or relaxing. Planned finishes include solid-surface countertops, custom cabinetry and trim, hardwood, carpeting and tile flooring. An energy-efficient heating and cooling system with an on-demand water heater adds comfort. A first-floor laundry and spacious two-car garage add convenience and function, while the unfinished basement provides ample storage and room for future expansion. There is time for some selections, so don't wait call today!
| yesterday | Listing updated with changes from the MLS® | |
| 4 days ago | Listing first seen on site |
Copyright 2025, PrimeMLS, Inc. All rights reserved. This information is deemed reliable, but not guaranteed. The data relating to real estate displayed on this display comes in part from the IDX Program of PrimeMLS. The information being provided is for consumers’ personal, noncommercial use and may not be used for any purpose other than to identify prospective properties consumers may be interested in purchasing.
Last checked: 2025-11-02 03:41 PM UTC
Did you know? You can invite friends and family to your search. They can join your search, rate and discuss listings with you.